Построенные дома
Поиск
Выберите категорию поиска. Введите ключевые слова, например название проекта “Проект ТК-156” и нажмите “Найти”
Где искать
Везде
Индивидуальные проекты
Авторские проекты
В построенных домах
Главная / Построенные дома / территория ДНП «Цветочное», СП Ропшинское, Ломоносовский район, ЛО

территория ДНП «Цветочное», СП Ропшинское, Ломоносовский район, ЛО

срок строительства по договору
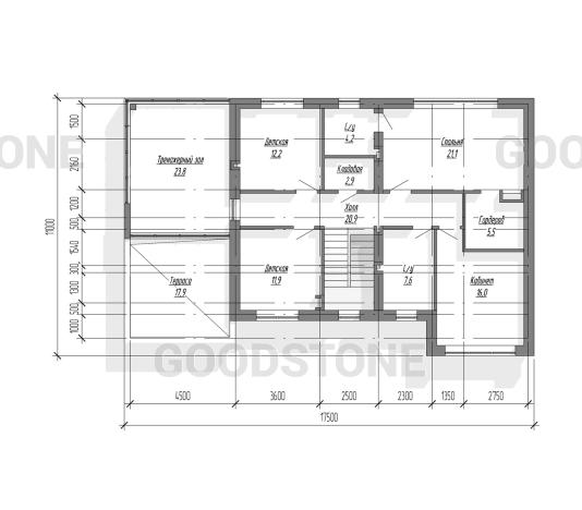
Общая площадь
282,3 м2
Фундамент
монолитная ж/б плита с ребрами вниз
Несущие стены
керамические блоки
Перегородки
керамические блоки
Покрытие кровли
плоская кровля
Стиль
Минимализм
Число санузлов
3
Число спален
5

Процесс строительства дома

Планировочные решения

Прежде чем оставить комментарий, пожалуйста, ознакомьтесь с правилами комментирования. Оставляя комментарий, вы подтверждаете ваше согласие с данными правилами и осознаете возможную ответственность за их нарушение. Все комментарии премодерируются.
Комментарии
cрок строительства по договору
Общая площадь
282,3 м2
Фундамент
монолитная ж/б плита с ребрами вниз
Несущие стены
керамические блоки
Перегородки
керамические блоки
Покрытие кровли
плоская кровля
Стиль
Минимализм
Число санузлов
3
Число спален
5
Войдите для комментирования